27
$669,900 Sale
Listed 14 hours ago
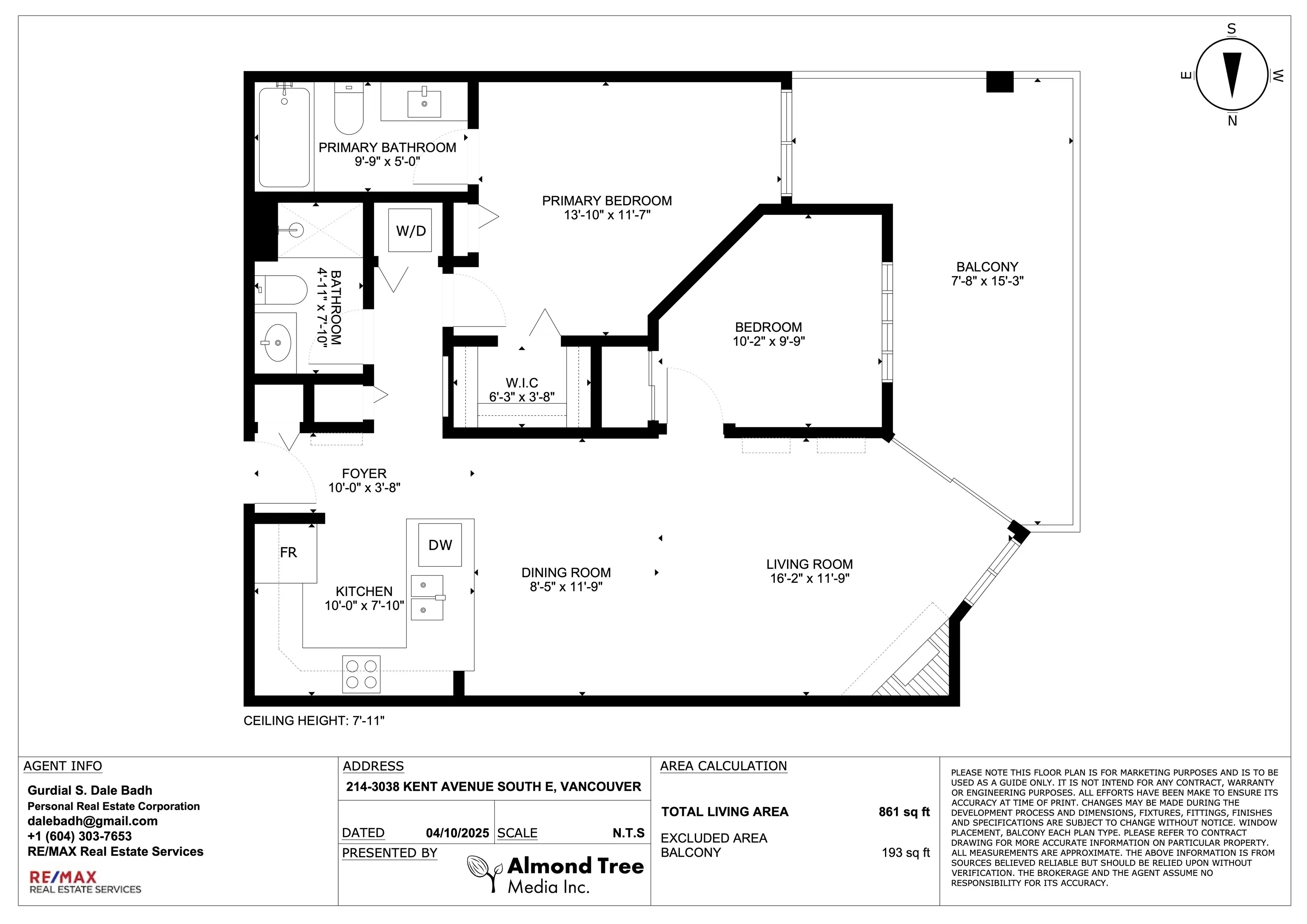
214 3038 Kent Avenue South E
· 2
· 2
· 2
· 867
Key Facts
Key facts for 214 3038 Kent Avenue South E
Property Type
Condo
Parking
2 parking
MLS #
R3055909
Size
867 sqft
Basement
None
Listed on
-
Lot size
-
Tax
$2,195.27 /yr
Days on Market
-
Year Built
1998
Maintenance Fee
$387 /mo
Description
Modern Riverside Living in the Heart of the River District! Experience sunsets and serene Fraser River views from this beautifully updated 2 bed, 2 bath home. The open kitchen boasts quartz countertops, upgraded cabinetry, and stainless steel appliances - perfect for entertaining. Cozy up by the gas... fireplace or unwind in your spacious primary suite with walk-in closet and renovated ensuite. Enjoy peace of mind in this fully rainscreened, pet-friendly building with new roof and proactive strata. Steps to the waterfront trail, Romer's Burger Bar, brand new West Fraserlands Childcare Centre, parks, shops, and cafes - embrace the best of riverside living!
Similar Properties (No results)
Room Types
Living Room
-
Dimensions 11'9 x 16'2
189.96 sqft
Dining Room
-
Dimensions 11'9 x 8'5
98.9 sqft
Kitchen
-
Dimensions 7'10 x 10'
78.33 sqft
Courtesy of: RE/MAX Real Estate Services